City of Albuquerque International District Library

Albuquerqe, NM

Our team was extensively involved in the planning and design for a proposed City of Albuquerque library. The project site encompasses two city blocks of property divided by a public city street. The property was previously developed with a night club and pawn shop which have since been demolished to make way for the new construction. The library and related site work will be located on the western block and the current city street right of way, which will be vacated. The overall project was planned to ultimately include a public park and public drainage facility on the eastern block.

We provided a wide variety of planning and design phase engineering, subsurface utility engineering and surveying services directly for the project architect in support of the overall project. Services provided to date include the following:

  • Boundary, topographic, and utility surveys of the site and adjacent streets
  • Aerial based UAV orthophotography
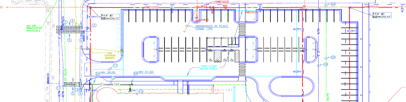
  • Building permit plans for site grading, drainage, paving, domestic water, fire protection, and sanitary sewer
  • Public improvement plans for perimeter curb, driveways, sidewalks, and utility removals and new connections
  • Sketch plat, preliminary plat, and vacation requests
  • Public water line and sanitary sewer easement surveys and documents

A major project requirement was the vacation of the public street that bisects the two blocks. The subdivision plat and vacation request, completed through the City of Albuquerque’s Development Review Board, vacated the public street and obsolete easements. These efforts resulted in a recorded plat that combined the site into a single tract of land that incorporated the vacated street right-of-way and provided easements necessary to serve the redeveloped site.

In addition to the aforementioned tasks to support the project, our team provided preliminary planning and coordination services related to the anticipated development of the eastern block as a public drainage facility and park site. This project includes onsite improvements and also an offsite storm drain extension to provide an outfall that alleviates existing downstream flooding conditions. We scoped and identified the process and requirements for this project and provided full-service design and construction phase subsurface utility, surveying and engineering services to support that effort upon authorization.